1 bedroom flat in Aylesbury Road, Hailsham, Wealden (1 bed)

£9.00
1 Bedroom
hailsham, Wealden
Good
48 views
Sep 20, 2025

Description

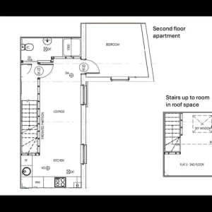
Just moved into this tidy, recently refreshed 1-bedroom flat in a conservation area in Hailsham, Wealden. It’s a quiet, well-maintained place with a clean, open kitchen and lounge area — feels bright and lived-in. The main bedroom is comfortable, and there’s a smaller room that could work as an office or study.

There’s a landscaped garden you can access, and off-street parking is included — super handy. The broadband is actually pretty fast, which is a bonus.

I’ve been living here for a few months now, so I know the place well and can point out the little things that make it comfortable.

It’s unfurnished, so you’ll need to bring your own furniture. No pets, no smoking, no students, and not really suited for families. Move-in date is from 11 September 2025, and it’s a 6-month minimum tenancy with a max of two tenants.

I’m a local landlord with a few properties in the area — nothing fancy, just a solid, low-maintenance place.

Rent is £1,125 a month, deposit is the same, and bills aren’t included. If you're looking for something practical and quiet, it might be a good fit.

If you're interested, just give me a call — I’ll sort a time to show it. I respond to messages all day, and I’m happy to take calls from 9am to 9pm.

No agent fees — just me and the property.

Reference number: 2585663 (use that when you talk to me)
×

Verify You're Human

Drag each icon to the correct environment image.